This old barn, which now adjoins a second home, had lost all use and threatened to ruin. Wanting to save her from imminent loss, the owner came up with the idea of making it a home for his children: a place of gathering and celebration.
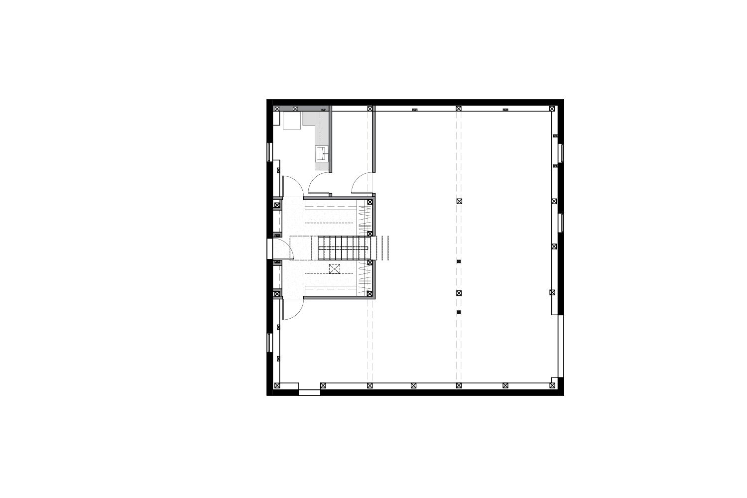
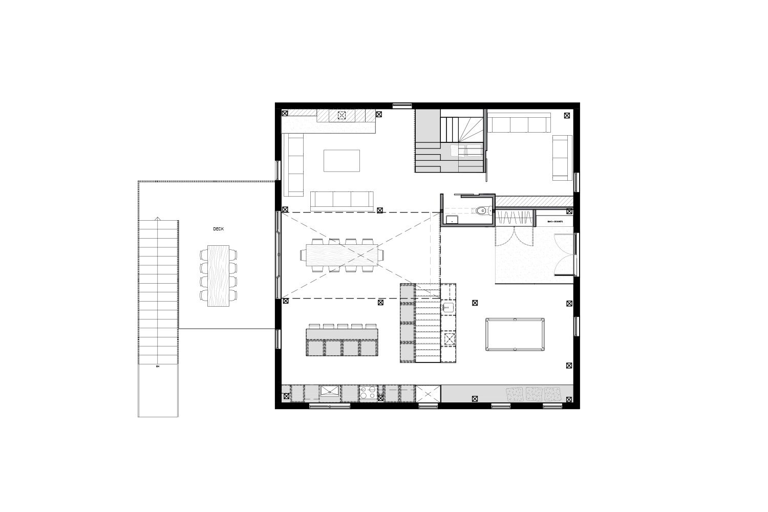
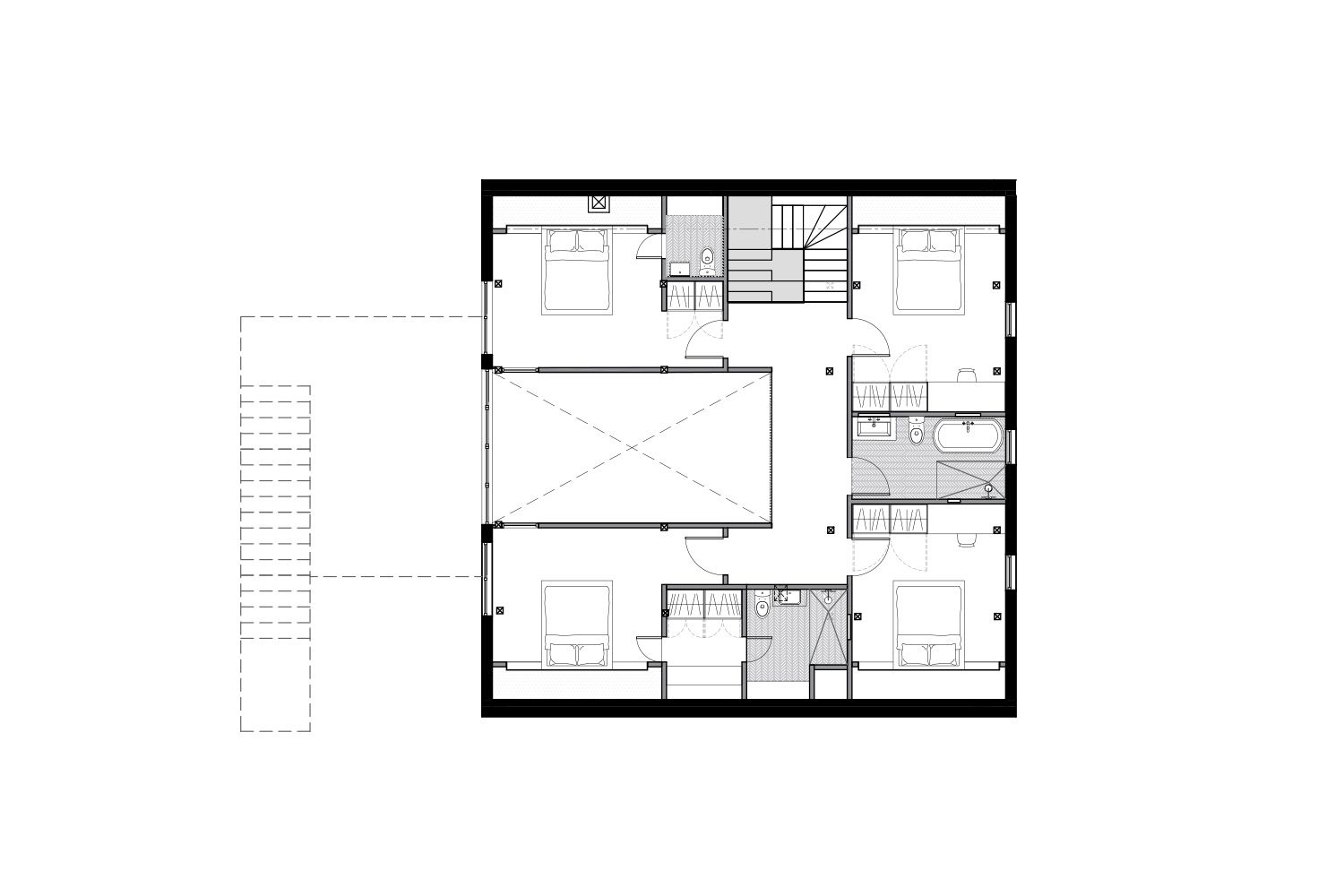
The Firm Studio was keen to preserve the vernacular architectural qualities of the original building. The initial structure has therefore been fully recovered. Each piece of hemlock in the facing and the structure was numbered to be then reinstalled: it is this framework that guided the organization of the space.The floor that once housed the livestock has become the main living level. It offers residents different degrees of privacy thanks to its multiple areas: open, half-open and closed. But above all, its 30 feet in height make it a space that breathes and connects majestically with the natural setting.It must be said that the site, camped at the foot of Mount Owl’s Head, offers a grandiose view that they have taken advantage of through generous windows. From there, the ancestral agricultural landscape remains almost intact.
Photography : Ulysse Lemerise Bouchard





















