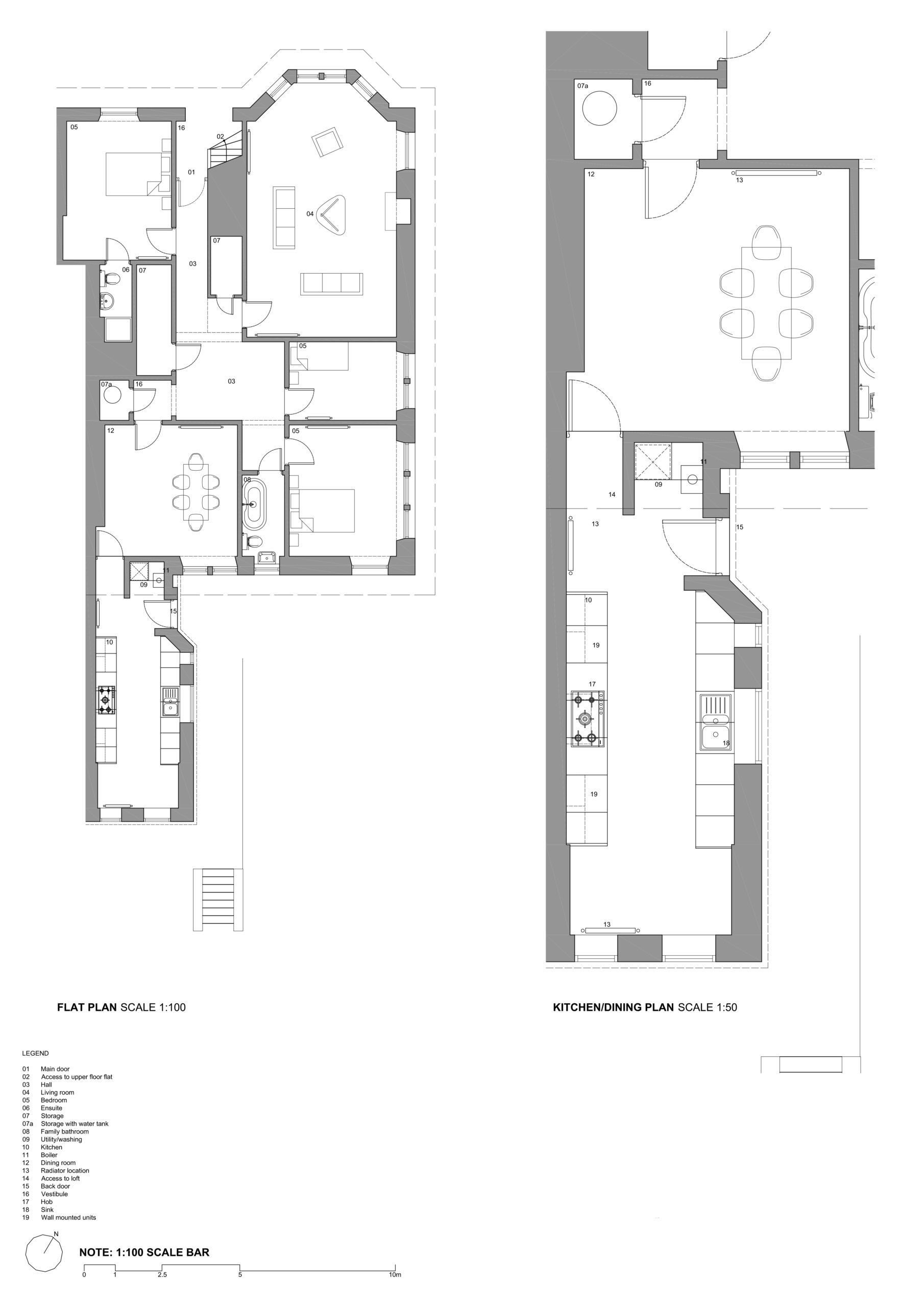
When Eilidh and Roddy went to visit Loader Monteith Studio about their project, they’d done their research. Armed with a series of evocative images that spoke of warmth and material tactility, they knew what they wanted to achieve.Their existing ground floor flat had its kitchen located in a single storey projection into the garden to the rear. It felt uncomfortable, disconnected from the rest of the property in a surprisingly dark room. The dining room – a well proportioned space with a classic high ceiling and ornate cornicing – was little more than a thoroughfare to the kitchen, and the convoluted route to the hall via the lobby exacerbated this further.
So the plan was to create a space suited to living, with the kitchen being the heart and soul of the home.The kitchen was pulled towards the centre of the flat, into the former dining room, with a door leading straight to the hall – making the room the convivial centre of the home.The ceiling within the garden projection was removed to expose the roof ties, and a new roof light introduced. Window sills were dropped, and a new frameless set of windows formed to improve connection to the garden – creating a bright day room. Adjacent to the back door, the studio proposed a utility box to house washing machines, the boiler, coats, boots and other usual clutter associated with family life. This made for an open, natural divide between the day room and the kitchen. (Published with Bowerbird.io).
Photography : Gillian Hayes


















